176 Crescent Woode Way, Dallas, 30157
Toggle Navigation
Images
Videos
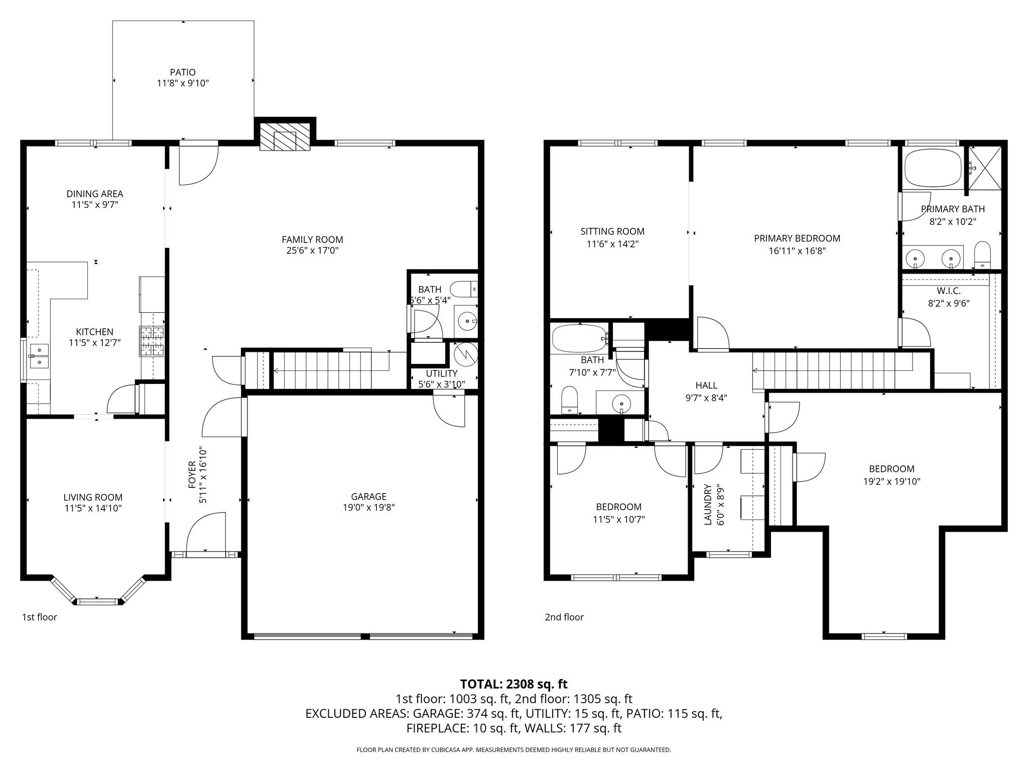
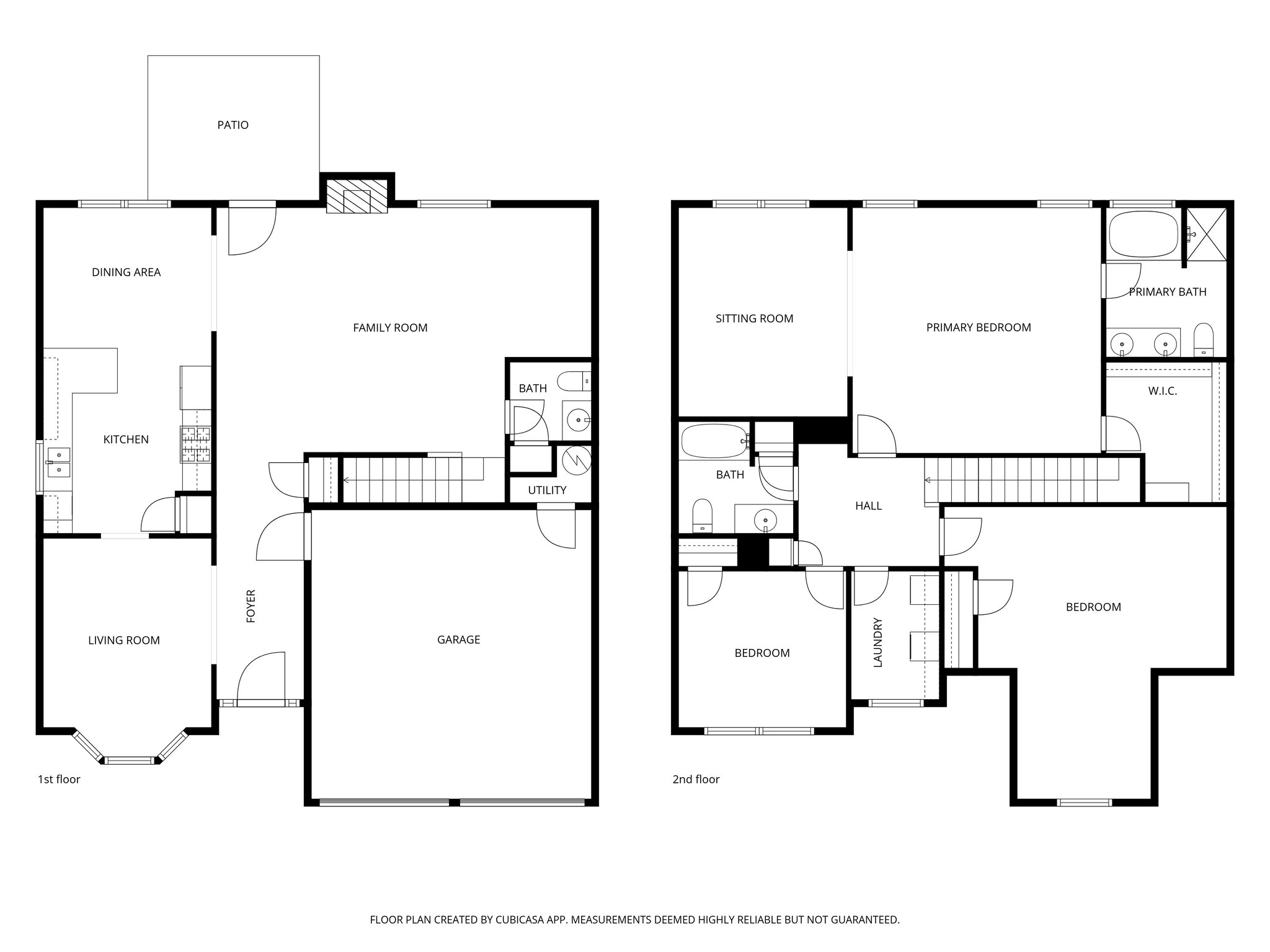
Floor Plans
Map
176 Crescent Woode Way
Dallas, 30157
Scroll to Content
Images
Slideshow
Photo Grid
Hide
Previous
Next
Show more
Videos
Floor Plans
Slideshow
Photo Grid
Hide
Previous
Next